Фундамент — деревянный ростверк на винтовых сваях
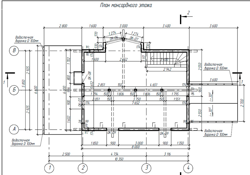
Несущие стены — SIP панель (174мм)
Покрытие — мягкая черепица
Наружная отделка — фасадные панели.
+7 (914) 231-56-67
Республика Саха (Якутия)
село Техтюр
Фундамент — деревянный ростверк на винтовых сваях
Несущие стены — SIP панель (174мм)
Покрытие — мягкая черепица
Наружная отделка — фасадные панели.





