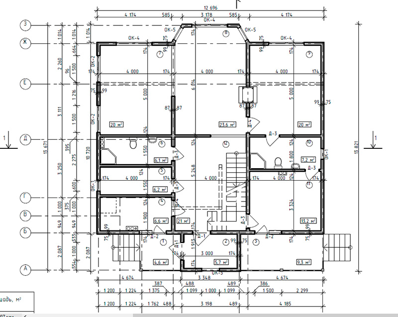
Фундамент — мелкозаглубленный ленточный на буронабивных сваях
Несущие стены — SIP панель (174мм)
Покрытие — битумная черепица
Наружная отделка — фиброцементные панели.
+7 (914) 231-56-67
Республика Саха (Якутия)
село Техтюр
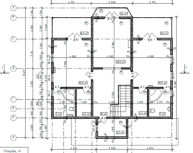
Фундамент — мелкозаглубленный ленточный на буронабивных сваях
Несущие стены — SIP панель (174мм)
Покрытие — битумная черепица
Наружная отделка — фиброцементные панели.





