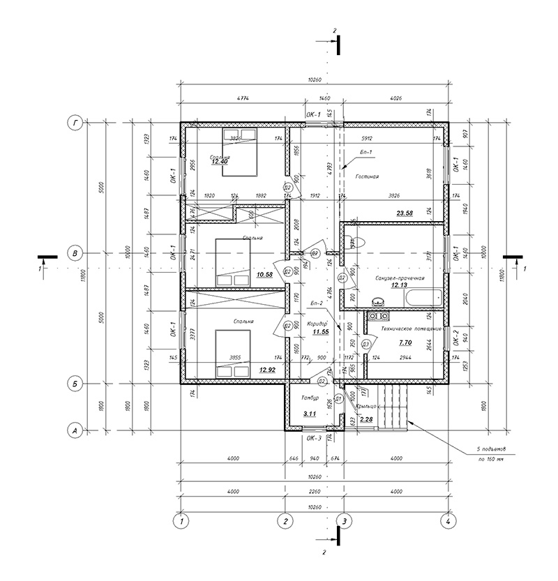
Фундамент — деревянный ростверк по свайному фундаменту
Несущие стены — SIP панель (174мм)
Покрытие — металочерепица
Наружная отделка — декоративная штукатурка
+7 (914) 231-56-67
Республика Саха (Якутия)
село Техтюр
Фундамент — деревянный ростверк по свайному фундаменту
Несущие стены — SIP панель (174мм)
Покрытие — металочерепица
Наружная отделка — декоративная штукатурка




