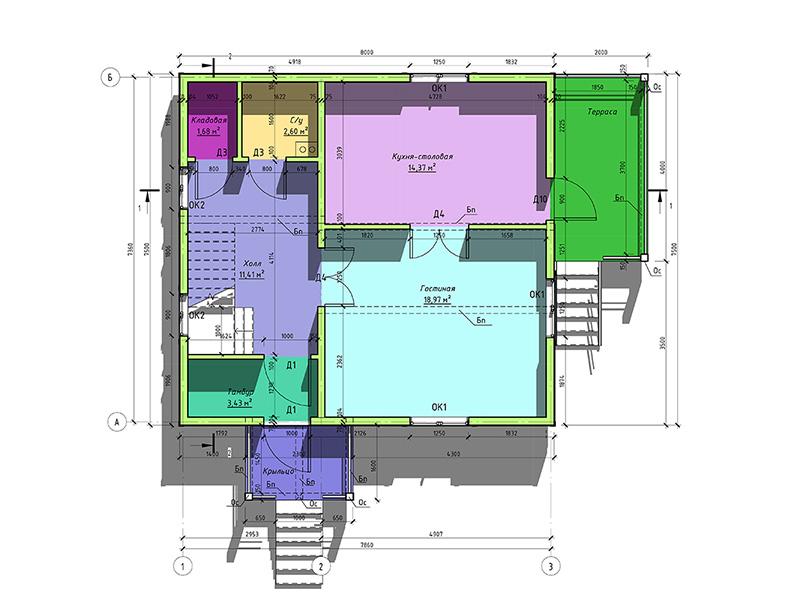
Фундамент — швеллер, обвязочная доска на винтовых сваях
Несущие стены — SIP панель (174мм)
Покрытие — металочерепица
Наружная отделка — фиброплита под природный камень
+7 (914) 231-56-67
Республика Саха (Якутия)
село Техтюр
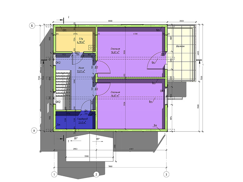
Фундамент — швеллер, обвязочная доска на винтовых сваях
Несущие стены — SIP панель (174мм)
Покрытие — металочерепица
Наружная отделка — фиброплита под природный камень





