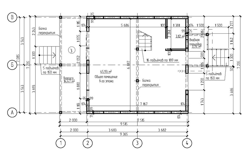
Фундамент — деревянный ростверк на винтовых сваях
Несущие стены — SIP панель (174мм)
Покрытие — битумная черепица
Наружная отделка — штукатурка, деревянные накладки "под фахверк"
+7 (914) 231-56-67
Республика Саха (Якутия)
село Техтюр
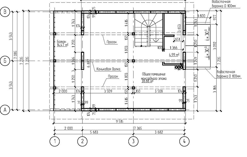
Фундамент — деревянный ростверк на винтовых сваях
Несущие стены — SIP панель (174мм)
Покрытие — битумная черепица
Наружная отделка — штукатурка, деревянные накладки "под фахверк"





